Корзина
0 руб.
пуста
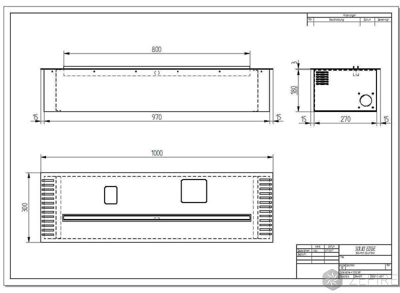
Габариты ВхШхГ: 183x1000x300 мм
Материал: Нержавеющая сталь, электроника
Возможная длина биокамина: возможны любые габариты на заказ
Цвет: Черный, металлик или любой другой под заказ
Тип биокамина: Встраиваемый
Объем топки: 4.1 л
Линия огня: 800 мм
Тип управления: Полуавтоматический
| Тип биокамина | Топливный блок |
| Расположение | Встраиваемый |
| Тип управления | Автоматический |
| Материал | сталь |
| Количество биоконтейнеров | 1 |
| Длина линии огня (общая) (мм) | 800 |
| Высота (мм) | 183 |
| Ширина (мм) | 1000 |
| Глубина (мм) | 300 |
| Бренд | ZeFire (РФ) |
Загрузка данных авторизации