- Пн-Пт 10:30-20:00 чвыходные 11:00-18:00 ч
- +7 (911) 925-21-12
- СПб, пр. Энгельса, д.71
- Наш адрес -
- СПб, пр. Энгельса, д.71 -
- Карта проезда
- Пн-Пт 10:30-20:00 чвыходные 11:00-18:00 ч
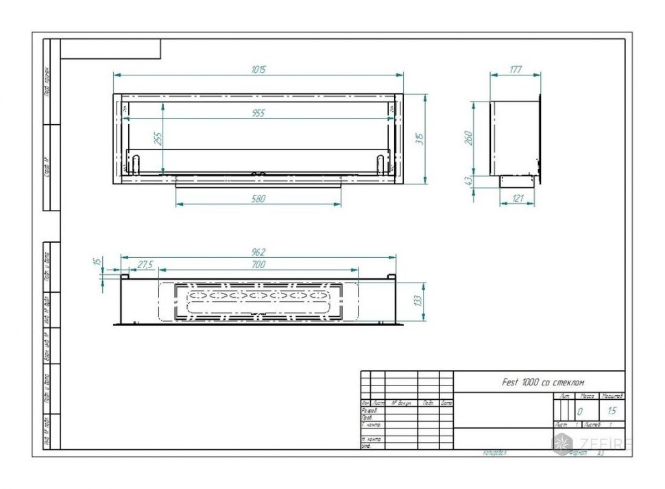
Встраиваемый биокамин Fest 1000 от российского бренда Estetic Flame – это самый короткий путь к мечте о домашнем очаге с живым пламенем. Установить такой огненный декор можно в любой квартире, даже если вы живете на первом этаже и дымохода в здании нет. Заказывать проект и согласовывать установку камина с пожарными службами и другими инстанциями не нужно.
Биокамин работает на жидком экологичном топливе. Состав на спиртовой основе при сгорании не выделяет дыма, гари и копоти. Поэтому устройство не привязано к коммуникациям и его можно инсталлировать в любую ненесущую конструкцию. В том числе – в короб из гипсокартона или мебель из МДФ. Для теплоизоляции в последнем случае достаточно минеральной ваты и фольги.
Отечественный производитель дает 5-летнюю гарантию на эту модель, так как уверен в ее высоком качестве. Экокамин имеет прочную конструкцию, очаг покрыт долговечной порошковой краской с матовым эффектом. Топливный контейнер с фигурными отверстиями – визитной карточкой бренда – дает красивую ровную линию огня длиной 500 мм. Модель подходит для проветриваемых помещений площадью от 15 кв. м и при своем объеме топки 2,6 л способна работать непрерывно 2-3 часа.
| Тип биокамина | Биокамин |
| Расположение | Встраиваемый |
| Тип управления | Ручной |
| Материал | сталь |
| Цвет | Черный |
| Количество биоконтейнеров | 1 |
| Длина линии огня (общая) (мм) | 500 |
| Высота (мм) | 315 |
| Ширина (мм) | 715 |
| Глубина (мм) | 177 |
| Бренд | ZeFire (РФ) |
Загрузка данных авторизации