- Пн-Пт 10:30-20:00 чвыходные 11:00-18:00 ч
- +7 (911) 925-21-12
- СПб, пр. Энгельса, д.71
- Наш адрес -
- СПб, пр. Энгельса, д.71 -
- Карта проезда
- Пн-Пт 10:30-20:00 чвыходные 11:00-18:00 ч
Каменка Combi - комбинация электрической каменки и испарителя. Вы можете выбирать между традиционной финской сауной, паровой баней, сауной с травами или ароматической сауной. Каменка Combi - это правильный выбор для тех, кто ценит мягкий и влажный пар и ароматную атмосферу. Бак для воды вмещает 5 литров, и, в зависимости от модели, может наполняться вручную или автоматически из водопровода. Каменка оборудована чашей из мыльного камня для жидких ароматизаторов и решеткой из нержавеющей стали для ароматизаторов в пакетиках. Система Combi проста и надежна.
Технические характеристики печи Virta Combi HL70S| Модель | HL70S |
| Мощность, кВт | 6,8 |
| Минимальный объем парильни, м3 | 5 |
| Максимальны объем парильни, м3 | 10 |
| Минимальная высота парильни, см | 190 |
| Максимальный вес камней, кг(Размер камней ? 10–15 cm, AC3020) | 50 |
| Размеры: ширина, мм | 415 |
| Размеры: высота, мм | 810 |
| Размеры: глубина, мм | 410 |
| Масса, кг | 27 |
| Тип электропитания: 3-фазный | 400 V 3N |
| Соединительный кабель, мм2 | 5x1,5+4x1,5 |
| Предохранитель A | 3x10 |
| Объем воды, л | 5 |
| Производительность парообразования | ca. 2,5 l/h |
| Пульт управления | Griffin Combi, C105S Logix |
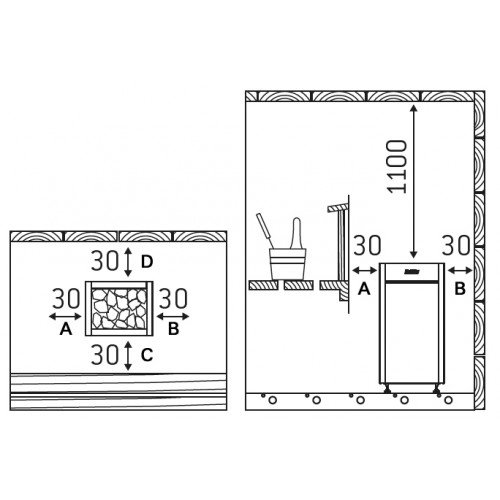
| Безопасное расстояние до потолка, мм | 1100 |
| Безопасное расстояние A | 30 |
| Безопасное расстояние B | 30 |
| Безопасное расстояние C | 30 |
| Безопасное расстояние D | 30 |
Каменки Harvia Virta легки в установке – все соединения доступны через сервисный люк на передней панели. Точки подключения имеют вокруг себя достаточно свободного места. Нагревательные элементы отделены от камней, результатом чего является длительный срок их службы, а их замена при необходимости – простая и быстрая процедура. И другие сервисные операции изначально продуманы так, чтобы сделать их легкими и несложными.
Смысл слова “Virta”В финском языке слово ‘virta’ имеет множество значений. Первоначальный природный смысл слова - обозначение потока воды. В электричестве этот термин – эквивалент силы тока. Поэтому это слово используется также для обозначения энергии Вашего духа и тела.
| Топливо | Электричество |
| Мощность (кВт) | 6 |
| Тип каменки | Открытая |
| Материал отделки | сталь |
| Высота (мм) | 810 |
| Ширина (мм) | 415 |
| Глубина (мм) | 410 |
| Вес | 27 кг |
| Вес камней (кг) | 50 |
| Бренд | Harvia (Финляндия) |
Загрузка данных авторизации