- Пн-Пт 10:30-20:00 чвыходные 11:00-18:00 ч
- +7 (911) 925-21-12
- СПб, пр. Энгельса, д.71
- Наш адрес -
- СПб, пр. Энгельса, д.71 -
- Карта проезда
- Пн-Пт 10:30-20:00 чвыходные 11:00-18:00 ч
Каминная продукция АВХ сертифицирована и полностью соответствует строгим стандартам Австрии и Германии. Отделка каминов, фото которых размещены на нашем сайте, может быть самой разнообразной: от окрашенного термостойкой краской металла, до кафеля и натурального камня.
Модель Normandie относится к кафельным каминам - одной из самых популярных категорий фирмы АВХ. Печь малогабаритна и может быть установлена как в загородном коттедже, так и в городской квартире. Топочная часть немного приподнята, организуя каминную полочку и нишу для дров. Топка имеет широкоформатное панорамное окно из термостойкой керамики. Печь высокоэффективна и имеет встроенные технологии "вторичного дожига" и "чистого стекла".
Доступные цвета: коричневая, зеленая, бордо, пикассо, хаматит, калифорния голд
| Бренд | Abx (Чехия) |
| Топливо | Дрова |
| Мощность (кВт) | 9 |
| КПД (%) | 83 |
| Диаметр (мм) | 150 |
| Выход дымохода | сзади |
| Форма стекла | Панорамное |
| Расположение | Угловой |
| Материал топки | Сталь |
| Материал отделки | керамика/изразец |
| Футеровка | Вермикулит |
| Дожиг воздуха | Простой |
| Духовой шкаф | Нет |
| Варочная плита | Нет |
| Водяной контур | Нет |
| Колосник | Есть |
| Зольник | Есть |
| Шибер | Нет |
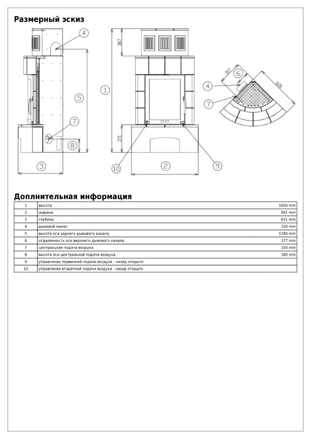
| Высота (мм) | 1656 |
| Ширина (мм) | 892 |
| Глубина (мм) | 631 |
| Вес | 181 кг |
Загрузка данных авторизации