- Пн-Пт 10:30-20:00 чвыходные 11:00-18:00 ч
- +7 (911) 925-21-12
- СПб, пр. Энгельса, д.71
- Наш адрес -
- СПб, пр. Энгельса, д.71 -
- Карта проезда
- Пн-Пт 10:30-20:00 чвыходные 11:00-18:00 ч
В камине 71 красиво сочетаются стекло, металл, мрамор и потрясающее пламя, помещенное в стеклянный колпак. Модель камина 71 проста в установке и имеет множество вариантов для его расположения в доме. Можно применить стандартный вариант, установив его около стены либо сделать камин как перегородку, разделяющую несколько функциональных зон в Вашем доме.
В отделке облицовки использована высоколегированная сталь и черный полированный мрамор. Вместе со стеклом эти материалы создают интересное трио в современном исполнении.
Топка камина отличается большими размерами. Она может работать как на газу, так и на дровах. Тип топлива оговаривается сразу при оформлении заказа на приобретение данной модели. Газовый очаг включается очень легко, с помощью кнопки на пульте управления, а дровяная топка работает как классический вариант.
Благодаря применению высокотехнологичных и качественных материалов, данный камин в стиле хай-тек будет служить вам очень долго.
| Топливо | Дрова, Газ |
| Расположение | Пристенный |
| Форма стекла | Угловое |
| Материал топки | Сталь |
| Материал отделки | стекло, сталь |
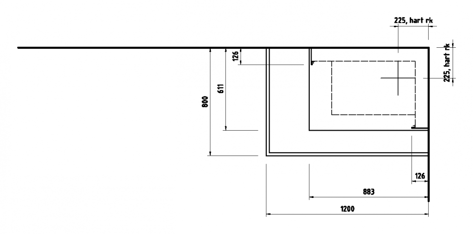
| Глубина (мм) | 800 |
| Ширина (мм) | 1200 |
| Бренд | Boley (Нидерланды) |
Загрузка данных авторизации