- Пн-Пт 10:30-20:00 чвыходные 11:00-18:00 ч
- +7 (911) 925-21-12
- СПб, пр. Энгельса, д.71
- Наш адрес -
- СПб, пр. Энгельса, д.71 -
- Карта проезда
- Пн-Пт 10:30-20:00 чвыходные 11:00-18:00 ч
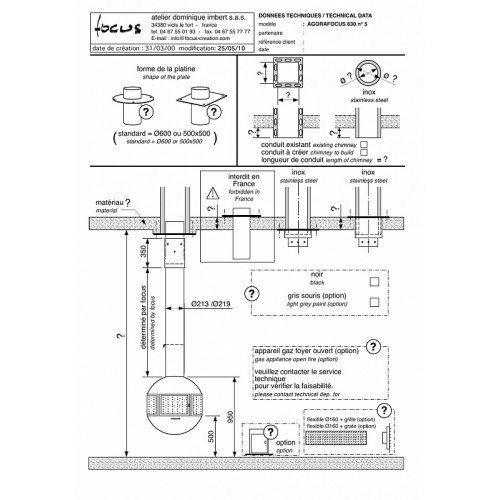
Эта искусно разработанная модель, подвесная с возможностью выбора направления во время установки либо напольная на подставке, позволяет наслаждаться открытым пламенем с разных ракурсов. Занимая лишь 630 мм в диаметре, эта модель остается простой и сдержанной. Она легко очищается (снабжена зольником или отверстием для удаления золы), легко устанавливается и обеспечивает панорамный обзор пламени на 360 градусов. Эта модель обладает большой теплоотдачей и удовлетворит самые взыскательные эстетические потребности клиентов.
Камин в середине комнаты обрадует любого своими совершенным внешним видом, перспективными гарантиями качества, удивительной вместимостью в любое дизайнерское помещение. Камин Agorafocus идеален для установки в больших домашних территориях, особенно, если устанавливать такой камин в центре комнаты. Камин от компании Focus Agorafocus – это всегда очень качественные жаропрочные компоненты, которые буду служить вам долгие десятилетия, к тому же, они смогут подарить вам отличный эмоциональный заряд сил, возможность хорошо проводить время в кругу любимой семьи. Камин Agorafocus представляет собой центральностоящее сооружение круглой формы, которое закрыто жаропрочным стеклом. Камин Agorafocus дает отличный просмотр пламени в топке, представляет собой красивое дизайнерское строение, способное украсить любой домашний колорит. Камин Agorafocus сможет стать особенно красивым домашним предметом, красивым и эстетически оригинально оформленным.
Камин Agorafocus – это конструкция из металла и стекла, высокотехнологичная удобная задумка мастеров компании Focus. Камин Agorafocus устанавливается в центре вашего дома, дает полномерный просмотр пламени на 360 градусов, он отлично представляет собой качественные гарантии производителей. Камин подвешивается со стороны потолка и заканчивается в виде закругленной топки, которая оригинально дополняет пространство дома. Камин круглой формы доступен к просмотру со всех сторон, представляет особенно привлекательные качества, способные восхитить любого, даже самого изощренного клиента. Камин Agorafocus имеет универсальные внешние данные, то есть такая модель сможет отлично подойти к любому домашнему интерьеру, даже самому авангардному. В простом современном интерьере такой камин станет настоящим украшением.
Камин Agorafocus универсален также тем, что перед покупкой вы сможете самостоятельно подобрать тип топлива. Это может быть газ или дрова. Тот и другой вариант топлива сможет очень удобно выполнять свои функции, радуя своим совершенными гарантиями качествами. Газовый очаг хорош тем, что может сразу быстро включаться от пульта дистанционного управления и сразу же предоставлять вам красивейшее эффектное пламя, построенное с ярко выраженной декоративной задумкой.
| Топливо | Дрова |
| Расположение | Подвесной |
| Форма стекла | Четырехстороннее |
| Мощность (кВт) | 10 |
| КПД (%) | 81 |
| Материал топки | Сталь |
| Выход дымохода | верхнее |
| Глубина (мм) | 630 |
| Ширина (мм) | 630 |
| Высота (мм) | 680 |
| Вес | 52 кг |
| Бренд | Focus (Франция) |
Загрузка данных авторизации