- Пн-Пт 10:30-20:00 чвыходные 11:00-18:00 ч
- +7 (911) 925-21-12
- СПб, пр. Энгельса, д.71
- Наш адрес -
- СПб, пр. Энгельса, д.71 -
- Карта проезда
- Пн-Пт 10:30-20:00 чвыходные 11:00-18:00 ч
МАКСИМАЛЬНОЕ ИСПОЛЬЗОВАНИЕ ЭНЕРГИИ
Корпус и передняя панель изготовлены из высококачественной стали, устойчивы к очень высоким температурам.
Эффективное сгорание и более длительное поддержание температуры благодаря футеровки камеры сгорания Acumotte - аккумулирующему тепло материалу, который повышает температуру в камере.
Высокий дымоход и поперечно расположенное пламя - увеличивают поверхность теплообмена между корпусом топки и окружающей средой. Снижение температуры выхлопных газов способствует повышению эффективности работы устройства.
Стабильная и устойчивая к растяжению дверца камина из закрытого профиля. Прокладка двери расположена в контурном канале, что гарантирует ее надлежащую адгезию и предотвращает ее выпадение во время работы.
Дожигание частиц топлива благодаря дефлектору, который расширяет путь выпуска.
Обеспечивает подачу воздуха только снаружи благодаря встроенному соединению для впуска воздуха 125 мм. Регулировка воздухозаборника с одним регулятором, что исключает ошибки при неправильном использовании.
Тройная система вентиляции камеры сгорания: первичный воздух - направляется на плиту, на которой происходит сгорание; вторичный воздух подается через отверстия в задней стенке. Кроме того, в топке используется система чистого стекла (воздушная завеса).
БЕЗОПАСНОСТЬ НА ВЫСОКОМ УРОВНЕ
Отличная герметичность благодаря прочным сварным швам, выполненным в защитном щите из благородного газа
Стальные элементы подвергаются лазерной резке с использованием современных устройств, а затем сгибаются на гибочных станках с ЧПУ
Передняя часть вставки оснащена термостойкой керамикой, выдерживающей температуру до 800 ° С.
ЭКОЛОГИЧЕСКОЕ ГОРЕНИЕ
Устройство соответствует требованиям Ecoprojekt и BImSchV 2, которые устанавливают максимальную эмиссию CO.
КОМФОРТНОЕ ИСПОЛЬЗОВАНИЕ
Топка без загрязнений - дожигание, что означает, что топливо сгорает до небольшого количества пепла, которое остается минимальным количеством. Получаемая таким образом тепловая энергия максимально используется. Нижняя пластина вставки значительно опущена по отношению к двери.
Ограничение сажи благодаря чистой системе ветрового стекла (обдув стекла).
СОВРЕМЕННЫЙ ДИЗАЙН
Каминная вставка с декоративным угловым цельным гнутым стеклом (1 стекло).
Декоративная стекло выдерживает температуру до 800°C, что придает камину современный и элегантный вид, оптически увеличивает переднюю часть каминной топки.
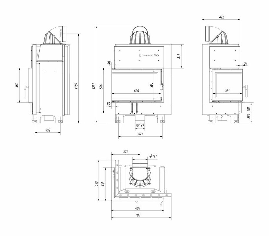
| Топливо | Дрова |
| Форма стекла | Угловое |
| Материал топки | Сталь |
| Водяной контур | Нет |
| Футеровка | Аккумотт |
| Подъемная дверца | Нет |
| Ширина фасада топки (мм) | 635 |
| Высота фасада топки (мм) | 396 |
| Шибер | Нет |
| Колосник | Нет |
| Зольник | Нет |
| Дожиг воздуха | Вторичный |
| Мощность (кВт) | 12 |
| КПД (%) | 81 |
| Диаметр (мм) | 200 |
| Высота (мм) | 1261 |
| Ширина (мм) | 760 |
| Глубина (мм) | 530 |
| Вес | 174 кг |
| Бренд | Kratki (Польша) |
Загрузка данных авторизации