- Пн-Пт 10:30-20:00 чвыходные 11:00-18:00 ч
- +7 (911) 925-21-12
- СПб, пр. Энгельса, д.71
- Наш адрес -
- СПб, пр. Энгельса, д.71 -
- Карта проезда
- Пн-Пт 10:30-20:00 чвыходные 11:00-18:00 ч
МАКСИМАЛЬНОЕ ИСПОЛЬЗОВАНИЕ ЭНЕРГИИ
Корпус и передняя панель изготовлены из высококачественной стали, устойчивы к очень высоким температурам.
Эффективное сгорание и более длительное поддержание температуры благодаря вкладышу камеры сгорания Acumotte - аккумулирующему тепло материалу, который повышает температуру в камере.
Высокий дымоход и поперечное пламя - увеличивают теплообменную поверхность между корпусом топки и окружающей средой. Снижение температуры выхлопных газов способствует повышению эффективности работы устройства.
Стабильная и устойчивая к натяжению дверь камина изготовлена из замкнутого профиля. Прокладка двери расположена в контурном канале, что гарантирует ее надлежащую адгезию и предотвращает ее выпадение во время работы.
Дожигание частиц топлива благодаря дефлектору, который расширяет путь выпуска.
Обеспечивает подачу воздуха только снаружи благодаря встроенному соединению для впуска воздуха 125 мм. Регулировка воздухозаборника с одним регулятором, что исключает ошибки при неправильном использовании.
Тройная система вентиляции камеры сгорания: первичный воздух - направляется на плиту, на которой происходит сгорание; вторичный воздух подается через отверстия в задней стенке. Кроме того, в топке используется система чистого стекла (воздушная завеса).
БЕЗОПАСНОСТЬ НА ВЫСОКОМ УРОВНЕ
Отличная герметичность благодаря прочным сварным швам, выполненным в защитном кожухе из благородного газа.
Стальные элементы подвергаются лазерной резке с использованием современных устройств, а затем подвергаются гибке на гибочных станках с ЧПУ.
Передняя часть топки оснащена термостойкой стеклокерамикой, выдерживающей температуру до 800°С.
ЭКОЛОГИЧЕСКОЕ ГОРЕНИЕ
Устройство соответствует требованиям Ecoprojekt и BImSchV 2, которые устанавливают максимальную эмиссию CO.
КОМФОРТНОЕ ИСПОЛЬЗОВАНИЕ
Вклад без загрязнений - дожигание, что означает, что топливо сгорает до небольшого количества пепла, которое остается минимальным количеством. Получаемая таким образом тепловая энергия максимально используется.
Нижняя пластина топки значительно опущена относительно двери.
Дверца кассеты работает в системе подъема - окно поднимается. Эта система была построена на основе противовеса - два блока (с обеих сторон двери) со стальным тросом работают в направляющих на двух шарикоподшипниках, благодаря чему вес двери распределяется равномерно. Они движутся на огнеупорных подшипниках вдоль направляющих скольжения, установленных в раме, что гарантирует их легкую, бесшумную и бесперебойную работу. Движение двери проходит на несколько миллиметров от корпуса, что предотвращает повреждение уплотнения. Закрытые двери с большой силой вдавливаются в раму, благодаря чему печь полностью герметизируется.
Благодаря поднятой и опущенной двери вы можете одновременно загружать нужное количество древесины. Дополнительный механизм, который позволяет открывать боковые окна, облегчая очистку и очистку топки.
Ограничение сажи благодаря чистой системе чистого стекла (обдув стекла).
СОВРЕМЕННЫЙ ДИЗАЙН
Каминная топка с декоративным угловым стеклом (2 стекла).
Декоративное остекление, выдерживающее температуру до 800°C, придает камину современный и элегантный вид, оптически увеличивает переднюю часть топки.
| Топливо | Дрова |
| Класс ЭЭ | A+ |
| Форма стекла | Угловое |
| Материал топки | Сталь |
| Водяной контур | Нет |
| Футеровка | Аккумотт |
| Подъемная дверца | Есть |
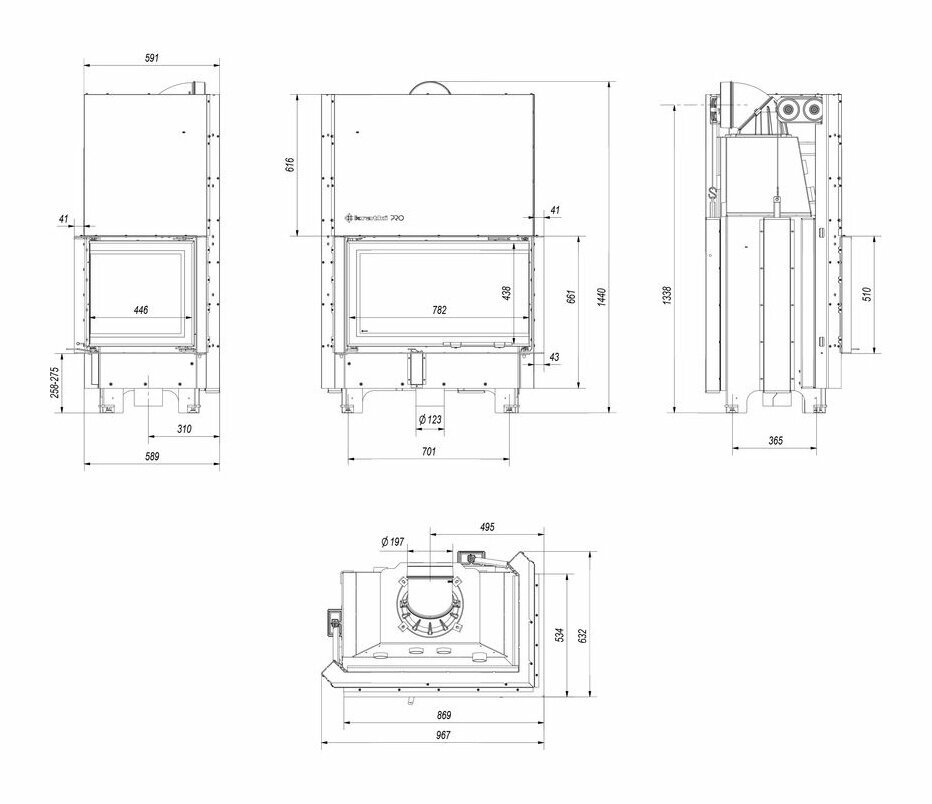
| Ширина фасада топки (мм) | 782 |
| Высота фасада топки (мм) | 438 |
| Шибер | Нет |
| Колосник | Нет |
| Зольник | Нет |
| Мощность (кВт) | 15 |
| КПД (%) | 83 |
| Диаметр (мм) | 200 |
| Высота (мм) | 1440 |
| Ширина (мм) | 967 |
| Глубина (мм) | 632 |
| Вес | 301 кг |
| Бренд | Kratki (Польша) |
Загрузка данных авторизации