- Пн-Пт 10:30-20:00 чвыходные 11:00-18:00 ч
- +7 (911) 925-21-12
- СПб, пр. Энгельса, д.71
- Наш адрес -
- СПб, пр. Энгельса, д.71 -
- Карта проезда
- Пн-Пт 10:30-20:00 чвыходные 11:00-18:00 ч
Термокамин Forma, помимо естественной конвекции, оснащен системой Comfort Air (комфортный воздух) запатентованной компанией MCZ, которая передает горячий воздух по нескольким комнатам (даже если эти комнаты расположены на разных ярусах) на расстояние до 8 м.
Разработанный и запатентованный компанией MCZ материал Alutec используется во всех моделях MCZ и применяется для облицовки внутренней поверхности топки. Alutec® - это огнеупорный, самоочищающийся, ударостойкий и очень прочный материал белого цвета, предохраняющий топку печи от перегрева. Alutec® состоит из шамота, алюминия и титана. Шамот работает как аккумулятор тепла. Алюминий, благодаря своему свойству очень быстро нагреваться, приводит к очищению стекла и самого материала Alutec®, который остается всегда белым. Титан придает этому материалу большую прочность. Alutec® во много раз тяжелее шамота и отлично аккумулирует тепло.
Все модели печей оборудованы воздухозаборниками, приспособленными для подключения притока воздуха с улицы. Применена, в конструкции топок, система контроля над горением, когда воздух подается в камеру сгорания равномерно по всей ширине топки. Благодаря этому дрова сгорают равномерно и плавно.
| Топливо | Дрова |
| Форма стекла | Прямое |
| Материал топки | Сталь |
| Водяной контур | Нет |
| Футеровка | Керамика |
| Подъемная дверца | Есть |
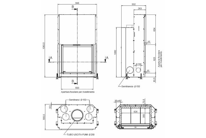
| Ширина фасада топки (мм) | 693 |
| Высота фасада топки (мм) | 623 |
| Шибер | Нет |
| Колосник | Нет |
| Зольник | Нет |
| Дожиг воздуха | Вторичный |
| Мощность (кВт) | 11 |
| Диаметр (мм) | 250 |
| Высота (мм) | 1363 |
| Ширина (мм) | 846 |
| Глубина (мм) | 555 |
| Вес | 248 кг |
| Бренд | MCZ (Италия) |
Загрузка данных авторизации