Корзина
0 руб.
пуста
Топка с прямым стеклом. Дверца топки открывается вверх, а также на себя для чистки стекла.
Легкий и бесшумный подъем обзорного стекла. Новая геометрия направляющих для подшипников, с прижимной функцией дверцы к корпусу топки при ее закрытии. Запатентованные подшипники, имеющие люфт по оризонтальной оси, благодаря которым, дверца имеет такой же легкий ход в разогретой каминной топке, как и в холодной. Регулировка противовесов возможна после монтажа топки. Все элементы не требуют дополнительной смазки.
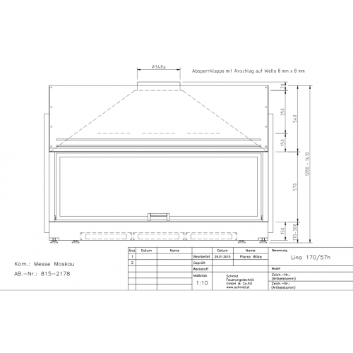
Видеообзор: Schmid презентацияТехнические характеристики топки Lina 170 57 h
| Ширина дверной рамки | 170 см |
| Высота дверной рамки | 57см |
| Номинальная мощность | 15 кВт |
| Диаметр дымохода | ? 350 мм |
| Адаптер для подключения наружного воздуха | ? 150 мм |
| Топливо | Дрова |
| Форма стекла | Прямое |
| Материал топки | Сталь, чугун |
| Водяной контур | Нет |
| Футеровка | Шамот |
| Подъемная дверца | Есть |
| Ширина фасада топки (мм) | 1700 |
| Высота фасада топки (мм) | 570 |
| Шибер | Нет |
| Колосник | Есть |
| Зольник | Есть |
| Мощность (кВт) | 15 |
| Диаметр (мм) | 300 |
| Высота (мм) | 1430 |
| Ширина (мм) | 1860 |
| Глубина (мм) | 540 |
| Бренд | Schmid (Германия) |
Загрузка данных авторизации