- Пн-Пт 10:30-20:00 чвыходные 11:00-18:00 ч
- +7 (911) 925-21-12
- СПб, пр. Энгельса, д.71
- Наш адрес -
- СПб, пр. Энгельса, д.71 -
- Карта проезда
- Пн-Пт 10:30-20:00 чвыходные 11:00-18:00 ч
Топка закрытая из чугуна от французского бренда Seguin сможет в быстрые сроки обогреть ваш дом, стать для него надежным стимулом для впечатляющего обогрева всего домашнего пространства – до 350 квадратных метров. Топка Super 8 представляет собой строение большой формы, которое вместит в себя впечатляющий объем дров, которого будет достаточно, чтобы протопить большое домашнее пространство.
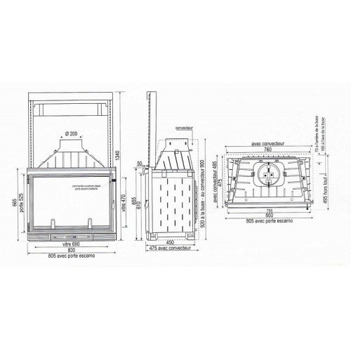
Технические характеристики топки Super 8
| Номинальная мощность | 16 кВт |
| Форма стекла | прямое |
| Ширина очага | 71-80 см |
| Материал топки и очага | чугун |
| Диаметр дымохода | 200 мм |
| Вес | 185 кг |
| Европейский стандарт | EN 13229 |
Топка Super 8 имеет номинальную мощность в 16 кВт. Благодаря качественной тепловой передачи и высокому КПД в 75% ваш дом сможет стать намного комфортнее в тепловом плане в быстрые сроки. Топка Super 8 от французской компании работает только на дровах. Топка Super 8 имеет закрытый характер, с помощью которого обогрев будет осуществляться на более высоком уровне качества. Топка закрытого плана предполагает изолированное горение дровяного топлива, которому не будет мешать свежий воздух.
Топка Super 8 – это удобный вариант для просмотра пламени, завораживающая красивая картина будет видна из любой точки комнаты, а прямое стекло жаропрочного характера не будет давать искажений.
В стандартную комплектацию входит:Сама топка без подъема дверки вверхРегулируемая шиберная заслонкаУмное устройство для открытия 'шибера'Зольный ящик (внутри топки)Задняя стенка 'языки пламени'Регулировка подачи воздухаРассекатель пламени
| Топливо | Дрова |
| Форма стекла | Прямое |
| Материал топки | Чугун |
| Водяной контур | Нет |
| Футеровка | Чугун |
| Подъемная дверца | Есть |
| Шибер | Есть |
| Колосник | Есть |
| Зольник | Есть |
| Мощность (кВт) | 16 |
| Диаметр (мм) | 200 |
| Высота (мм) | 900 |
| Ширина (мм) | 800 |
| Глубина (мм) | 475 |
| Вес | 185 кг |
| Бренд | Seguin (Франция) |
Загрузка данных авторизации