ВНИМАНИЕ! Просим уточнять стоимость и наличие по телефону +7 (911) 925-21-12

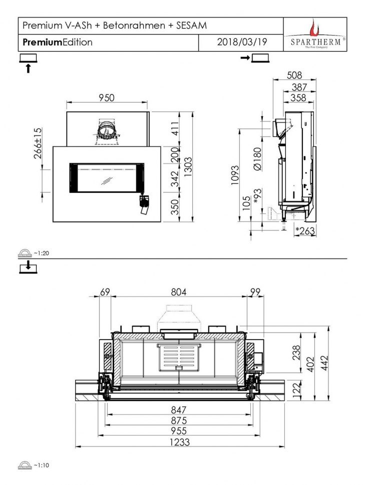
Каминная топка Spartherm Premium V-ASh с бетонной рамой + SESAM

Купить Каминная топка Spartherm Premium V-ASh с бетонной рамой + SESAM

Цена
744 000 руб.
Артикул: 46293
Количество

Уникальная фронтальная топка Spartherm Premium V-ASh, с безрамной дверцей, в комплекте с бетонной панелью (рамкой) и электроподъемным механизмом SESAM.

Особенностью Spartherm Premium V-ASh является то, что каминная топка оснащена двойным стеклом.
Размеры по дверце: высота 33,8см, ширина 87,3см.
Каминная топка имеет мощность 7 кВт, диаметр дымохода 180 мм, вес 212 кг, производство Германия.

Электроподъемный механизм Spartherm SESAM

Электроподъемный механизм Spartherm SESAM относится к категории дополнительного оснащения к топкам немецкого бренда Spartherm. Комплектующие от производителя, выполненные из высококачественных материалов, с вниманием к деталям и пониманием особенностей серийных топок, станут идеальным дополнением к вашему отопительному оборудованию. Вы выбираете топку, об остальном вместо вас уже позаботились инженеры Spartherm.

Описание каминной топки

  • Уникальная большая сверхровная поверхность, обеспечивающая панорамный обзор пламени
  • Топка оснащена двойным остеклением от лидера мирового рынка SCHOTT, смягчающим излучение тепла в помещение
  • Скрытая ручка в сочетании с максимально видной топочной частью создают неповторимый облик топки - нет ничего лишнего, что мешало бы насладиться видом огня
  • Герметичность корпуса достигается отсутствием винтовых и шурупных креплений
  • В топке использованы не требующие технического обслуживания термостойкие подшипники и шарикоподшипники скользящего трения. Доступ в контргрузовую шахту возможен через топочную камеру
  • Возможно подключение подачи воздуха на горение извне
  • Подача воздуха на первичный и вторичный дожиг регулируется независимо друг от друга. Вторичный дожиг воздуха в топочной камере обеспечивает эффективное сжигание с низким уровнем выброса вредных веществ
  • Топка оснащена механизмом фиксации дверцы для закладки дров и чистки стекла
  • Система самоочистки стекла обеспечивает длительный обзор пламени без помех
  • Поворотная колосниковая решетка из высококачественного литого материала, которую легко и просто чистить
  • Рычаг для управления воздухом одновременно используется для регулировки приточного воздуха, вторичного дожига и системы "чистое стекло". Обладает телескопической механикой, минималистичным дизайном и высокой функциональностью. Для использования регулировки не нужны специальные инструменты, кроме ключа "холодная рука". Регулировочный рычаг почти незаметен и не нарушает органичный внешний вид фасада топки
  • Дверца оснащена замком Soft Close, имеющим европейский патент. Жесткие, не подверженные перекосу дверные профили обеспечивают герметичность топочной камеры
  • Облицовка топочной камеры не чувствительна к ударам, термостойка и обладает превосходными теплоизоляционными качествами
  • Регулируемые ножки предназначены для удобного выравнивания топки, имеют подвижные диски в основании и обеспечивают устойчивое положение топки

Описание электроподъемного механизма Spartherm SESAM

  • Система представляет собой дверку топки, открываемую вверх, с электрическим механизмом, управляющим ее подъемом
  • Система SESAM доступна как для серийных, так и заказных топок
  • Автоматический подъем дверки, управление при помощи пультом ДУ с тремя режимами (открыть, пауза, закрыть)
  • Возможно подсоединение внешнего выключателя, с помощью реле сопряжения возможно подключение к системе управления домом (в том числе и "умный дом")
  • Подключение к сети 230V, встроенный аккумулятор на случай перебоев в электроснабжении (резерв работы аккумулятора 100 циклов открытия/закрытия)
  • Возможно ручное открытие/закрытие, без использования системы SESAM
  • Система, предназначенная для установки в топки с угловым или трехсторонним стеклом, исполняется только на заказ

Каминная топка Spartherm Premium V-ASh с бетонной рамой + SESAM - Характеристики

ТопливоДрова
Форма стеклаПрямое
Материал топкиСталь
Водяной контурНет
ФутеровкаШамот
Подъемная дверцаЕсть
Ширина фасада топки (мм)873
Высота фасада топки (мм)338
ШиберНет
Мощность (кВт)7
Диаметр (мм)180
Высота (мм)1303
Ширина (мм)1233
Глубина (мм)442
Вес270 кг
БрендSpartherm (Германия)

Рекомендуем посмотреть

754 000 руб.
В наличии
Количество
Кол-во
759 600 руб.
В наличии
Количество
Кол-во
Каминная топка Chazelles DESIGN D1350
Каминная топка Chazelles DESIGN D1350
762 300 руб.
В наличии
762 300 руб.
В наличии
Количество
Кол-во
719 200 руб.
В наличии
Количество
Кол-во
Каминная топка Spartherm Varia Bh 4S
Каминная топка Spartherm Varia Bh 4S
776 700 руб.
В наличии
776 700 руб.
В наличии
Количество
Кол-во
Каминная топка Spartherm Varia 1V-87h
Каминная топка Spartherm Varia 1V-87h
704 000 руб.
В наличии
704 000 руб.
В наличии
Количество
Кол-во
785 640 руб.
В наличии
Количество
Кол-во
Каминная топка MCZ Plasma 50T
Каминная топка MCZ Plasma 50T
786 390 руб.
В наличии
786 390 руб.
В наличии
Количество
Кол-во
697 290 руб.
В наличии
Количество
Кол-во
Каминная топка АСТОВ ПС 15057
экономия 12%
Каминная топка АСТОВ ПС 15057
691 000 руб.
785 000 руб.
экономия 12%
В наличии
691 000 руб.
785 000 руб.
экономия 12%
В наличии
Количество
Кол-во
Каминная топка MCZ Plasma 115 прямое стекло
Каминная топка MCZ Plasma 115 прямое стекло
688 490 руб.
В наличии
688 490 руб.
В наличии
Количество
Кол-во
Каминная топка Hoxter Haka 89/72h
Каминная топка Hoxter Haka 89/72h
686 290 руб.
В наличии
686 290 руб.
В наличии
Количество
Кол-во

Товар добавлен в корзину

Закрыть
ЗакрытьКарта проезда