- Пн-Пт 10:30-20:00 чвыходные 11:00-18:00 ч
- +7 (911) 925-21-12
- СПб, пр. Энгельса, д.71
- Наш адрес -
- СПб, пр. Энгельса, д.71 -
- Карта проезда
- Пн-Пт 10:30-20:00 чвыходные 11:00-18:00 ч
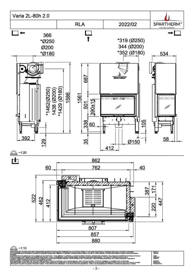
Spartherm Varia 2L-80h Linear 4S - это Г-образная топка с боковым стеклом слева. Размер фасада топки ШхВ 802+412х512 мм. Стекло составное из двух частей. Дверца оснащена подъёмным механизмом с плавным и тихим ходом. Для чистки стекла от сажи одна створка со стеклом открывается вбок. Замок створки оснащен пружиной, которая компенсирует температурное расширение и сохраняет герметичность топочной камеры. Дверка топки в исполнении Linear 4S (Скрытая рама дверки по боковым сторонам. По 4-м сторонам тонировка на стекле). Топочная камера футерована шамотом бежевого цвета, который поддерживает высокую температуру в топочной камере при горении дров и защищает корпус топки от контакта с огнём. Поворотный чугунный патрубок облегчает подключение к дымоходу. Для удобного монтажа каминного короба топку можно укомплектовать монтажной рамкой, которая скрывает примыкание короба к топке и придаёт обрамлению топки законченный вид.
Опции:
| Топливо | Дрова |
| Класс ЭЭ | A+ |
| Форма стекла | Угловое |
| Материал топки | Сталь |
| Водяной контур | Нет |
| Футеровка | Шамот литьевой |
| Подъемная дверца | Есть |
| Ширина фасада топки (мм) | 802 |
| Высота фасада топки (мм) | 512 |
| Шибер | Нет |
| Колосник | Есть |
| Зольник | Есть |
| Дожиг воздуха | Вторичный |
| Мощность (кВт) | 10.4 |
| КПД (%) | 80 |
| Диаметр (мм) | 200 |
| Высота (мм) | 1523 |
| Ширина (мм) | 948 |
| Глубина (мм) | 508 |
| Вес | 275 кг |
| Бренд | Spartherm (Германия) |
Загрузка данных авторизации