- Пн-Пт 10:30-20:00 чвыходные 11:00-18:00 ч
- +7 (911) 925-21-12
- СПб, пр. Энгельса, д.71
- Наш адрес -
- СПб, пр. Энгельса, д.71 -
- Карта проезда
- Пн-Пт 10:30-20:00 чвыходные 11:00-18:00 ч
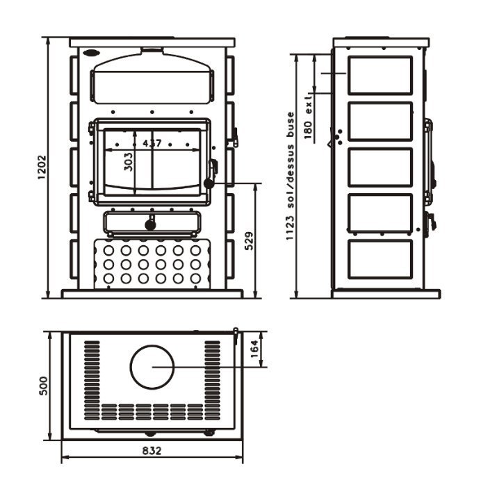
Печь-камин Chamonix XXL 350104 / Шамоникс XXL 350104 с чугунной топкой.
Эта печь-камин произведена на легендарном французском заводе GODIN (Годэн, Годин), с очень интересной историей.
Фронтальная загрузка дров. Корпус выполнен из стали с элементами из жаропрочного бетона. В базовой комплектации фасад топки черный с комплектом декоративных пластин из эмалированной стали (10 шт.), цвета - красный, сахара, серый, белый, бордовый, антрацит, черный матовый, синий, черный глянцевый, шампань, песочный.
Опции:
1) фасад топки черный с декором из керамики различных цветов;
2) декоративная крышка из стали с эмалью различных цветов, модель 965006;
3) дверца со стеклом для печки, модель 965005.
Дверца со стеклокерамикой, выдерживающей температуру до 800оС. Поддерживается режим длительного горения.
| Бренд | Godin (Франция) |
| Топливо | Дрова |
| Мощность (кВт) | 12 |
| Диаметр (мм) | 180 |
| Выход дымохода | сверху, сзади |
| Форма стекла | Прямое |
| Расположение | Пристенный |
| Материал топки | Чугун |
| Материал отделки | сталь, керамика/изразец |
| Футеровка | Чугун |
| Дожиг воздуха | Вторичный |
| Духовой шкаф | Есть |
| Варочная плита | Нет |
| Водяной контур | Нет |
| Колосник | Есть |
| Зольник | Есть |
| Шибер | Нет |
| Высота (мм) | 1206 |
| Ширина (мм) | 832 |
| Глубина (мм) | 500 |
| Вес | 270 кг |
Загрузка данных авторизации