- Пн-Пт 10:30-20:00 чвыходные 11:00-18:00 ч
- +7 (911) 925-21-12
- СПб, пр. Энгельса, д.71
- Наш адрес -
- СПб, пр. Энгельса, д.71 -
- Карта проезда
- Пн-Пт 10:30-20:00 чвыходные 11:00-18:00 ч
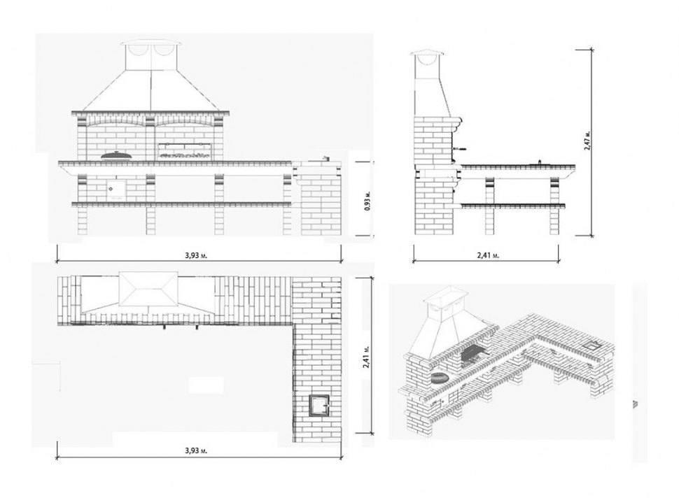
Печь-барбекю предназначена для приготовления на углях блюд из мяса, рыбы и овощей на гриле (решетке), вертеле или шампурах (вертелы и шампуры в основной комплект поставки не входят и приобретаются отдельно).
Мангал рассчитан на использования дров и угля.
Внутренние поверхности мангала выложены шамотными плитами. Решетка-гриль, входящая в основной комплект поставки, может располагаться на одном из трех уровней, для увеличения или уменьшения расстояния между углем и продуктом.
Печь-барбекю оборудована встроенной стальной дровяной печью, на которую устанавливается казан. Пламя от дров в печи непосредственно соприкасается с казаном. Казан изготовлен из чугуна, укомплектован облегченной крышкой. Казан может использоваться для приготовления множества как национальных, так и традиционных блюд - от плова до ухи и каш.
Казан может быть извлечен из соответствующего углубления и на его место устанавливается плоская стальная поверхность, превращающая печь в плиту, на которую могут быть установлены чайник, кастрюля или сковорода.
Печь под плитой и казаном оснащена зольником, использование которого позволяет легко удалять остатки золы и регулировать подачу воздуха в печь, таким образом управляя интенсивностью горения дров и температурой под казаном или плитой.
Для увеличения дымохода в высоту возможна поставка блоков удлинителя дымохода. Размер одного блока (шхвхг) 30х33х30 см.
В стандартную поставку входит:
Казан
Поверхность для плиты
Мангал
Рамка для шампуров
Решетка-гриль
Дровяная печь под казан
Зольник
Мойка (смесителем не комплектуется)
Дополнительно приобретаются:
Удлинители дымохода
Шибер
Искрогаситель
Шампуры
Коптильня
| Бренд | Аристрокат (РФ) |
| Топливо | Дрова, Уголь, Дрова, уголь |
| Глубина (мм) | 2410 |
| Ширина (мм) | 3930 |
| Высота (мм) | 2470 |
| Вес | 2710 кг |
| Футеровка | Шамот |
Загрузка данных авторизации