- Пн-Пт 10:30-20:00 чвыходные 11:00-18:00 ч
- +7 (911) 925-21-12
- СПб, пр. Энгельса, д.71
- Наш адрес -
- СПб, пр. Энгельса, д.71 -
- Карта проезда
- Пн-Пт 10:30-20:00 чвыходные 11:00-18:00 ч
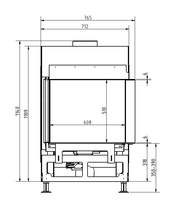
Schmid Ekko G R 67 - это угловая газовая топка с боковым стеклом справа. Размеры фасада: Ширина 424+608, высота 510 мм. В качестве топлива может быть использован либо магистральный газ (G20/G25) либо баллонный газ (G31). Топка комплектуется керамическими дровами с вмонтированными пятью горелками, которые объединены в две дистанционно управляемые группы. Сквозь уникальные керамические поленья пропущены вольфрамовые нити, которые светятся при контакте с пламенем, создавая полную иллюзию тления дров.
Для придания большей реалистичности горения дров топка может быть опционально оснащена светодиодной подсветкой, которая создает эффект тлеющих углей. Ее можно включать отдельно, если нет потребности в тепле.
Управление газовым камином осуществляется с помощью пульта ДУ.
Дистанционное управление со следующими функциями:
Автоматика управления подачей газа соответствует всем требованиям безопасности и потребления энергии. Герметичная камера сгорания и система защиты от утечки газа гарантируют полную безопасность. Управляющий подачей газа клапан работает при низком напряжении надежно и особенно тихо. Установка коаксиального дымохода освобождает Вас от монтажа приточной вентиляции.
В стандартном исполнении стенки топочной камеры отделаны сталью с черной матовой поверхностью. Возможна футеровка топочной камеры черной стеклокерамикой с зеркальной поверхностью. Так же возможен вариант внутренней отделки „кирпичная кладка“ (цена по запросу).
Комплектация:
Опции:
| Класс ЭЭ | A |
| Топливо | Газ |
| Тип газа | Магистральный газ, Баллонный газ |
| Форма стекла | Угловое |
| Материал топки | Сталь |
| Мощность (кВт) | 9.2 |
| Ширина фасада топки (мм) | 608 |
| Высота фасада топки (мм) | 510 |
| Высота (мм) | 1140 |
| Ширина (мм) | 765 |
| Глубина (мм) | 622 |
| Диаметр (мм) | 130 |
| Вес | 190 кг |
| Бренд | Schmid (Германия) |
Загрузка данных авторизации