Корзина
0 руб.
пуста
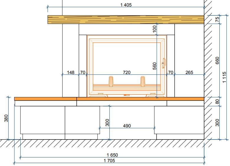
MT-035 Песчаник Luberon (Франция), мрамор Rosa Verona (Италия), деревянная полка.
Параметры:
Высота 111,5 см
Ширина 170,5 см
Глубина 105 см
| Расположение | Двусторонний |
| Материал балки | дерево |
| Высота (мм) | 1115 |
| Ширина (мм) | 1705 |
| Глубина (мм) | 1050 |
| Бренд | Sunhill (РФ) |
Загрузка данных авторизации