Корзина
0 руб.
пуста
M-005 Мрамор Crema Marfil (Испания), мрамор Emperador (Испания). Опция - полка из стекла.
M-005 Мрамор Yellow Spain (Испания). Опция - полка из стекла.
Внимание! Плиты вокруг топки включены в цену облицовки!
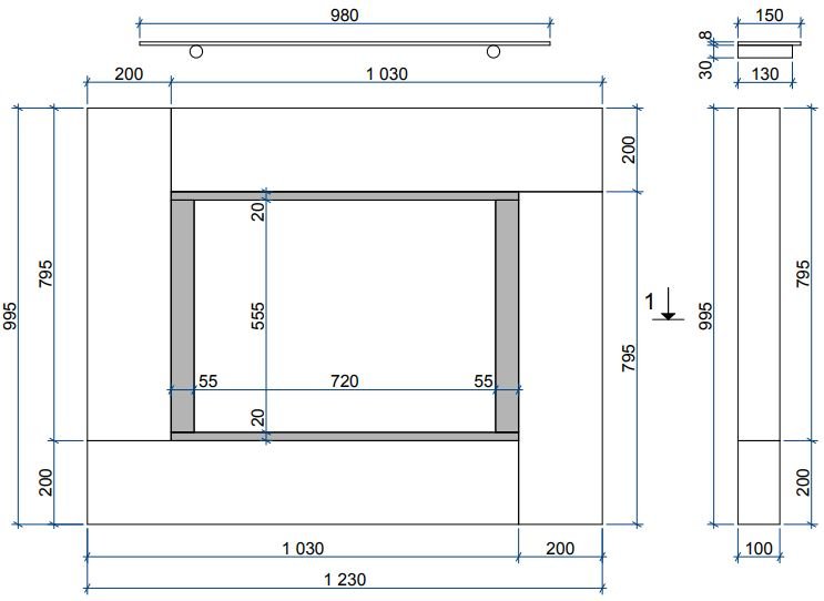
Параметры:
Высота 99,5 см
Ширина 123 см
Глубина 70 см
| Расположение | Пристенный |
| Высота (мм) | 995 |
| Ширина (мм) | 1230 |
| Глубина (мм) | 180 |
| Бренд | Sunhill (РФ) |
Загрузка данных авторизации