Корзина
0 руб.
пуста
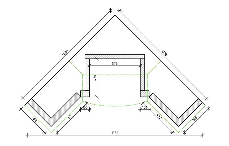
R-032 На фото камин представлен из ракушекчника Du Gard (Франция), красные кирпичи (Франция), деревянная полка.
Параметры:
Высота 117,5 см
Ширина 205 см
Глубина 90 см
| Расположение | Угловой |
| Материал балки | дерево |
| Высота (мм) | 1175 |
| Ширина (мм) | 2050 |
| Глубина (мм) | 900 |
| Бренд | Sunhill (РФ) |
Загрузка данных авторизации