Корзина
0 руб.
пуста
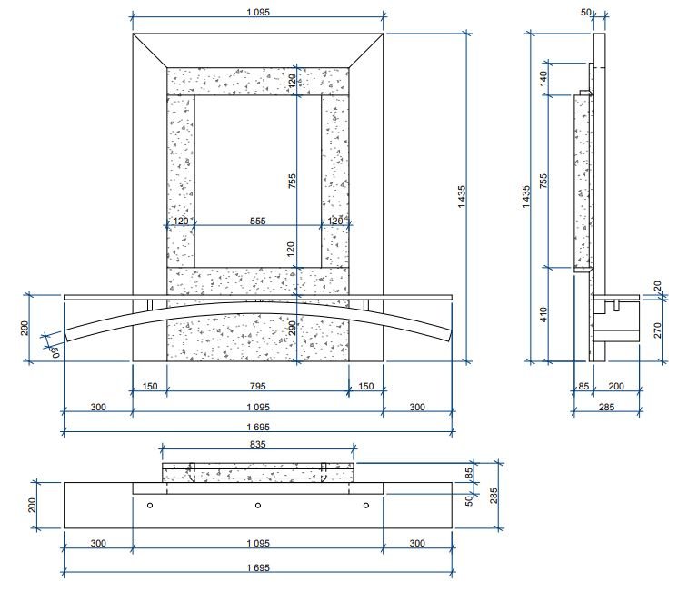
K-039 На фото облицовка представлена из дерева Macassar. Опция - камень вокруг топки.
Параметры:
Высота 143,5 см
Ширина 169,5 см
Глубина 20 см
| Расположение | Пристенный |
| Высота (мм) | 1435 |
| Ширина (мм) | 1695 |
| Глубина (мм) | 200 |
| Бренд | Sunhill (РФ) |
Загрузка данных авторизации