Корзина
0 руб.
пуста
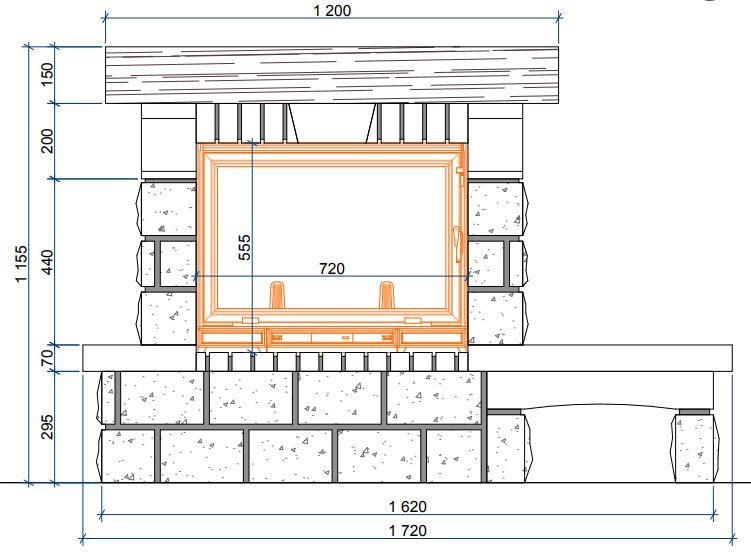
R-002 На фото камин представлен из ракушечника Dordogne (Франция), красные кирпичи (Франция), полка из дуба.
Параметры:
Высота 115,5 см
Ширина 171 см
Глубина 75 см
| Расположение | Пристенный |
| Материал балки | дерево |
| Высота (мм) | 1155 |
| Ширина (мм) | 1710 |
| Глубина (мм) | 750 |
| Бренд | Sunhill (РФ) |
Загрузка данных авторизации