Корзина
0 руб.
пуста
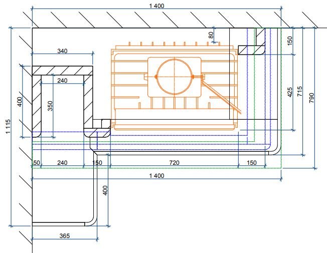
MT-029 Ракушечник Du Gard (Франция), гранит Gialo Veneciano (Италия), деревянная полка.
Параметры:
Высота 228,8 см
Ширина 140 см
Глубина 110 см
| Расположение | Пристенно-угловой |
| Материал балки | дерево |
| Высота (мм) | 2288 |
| Ширина (мм) | 1400 |
| Глубина (мм) | 1100 |
| Бренд | Sunhill (РФ) |
Загрузка данных авторизации