- Пн-Пт 10:30-20:00 чвыходные 11:00-18:00 ч
- +7 (911) 925-21-12
- СПб, пр. Энгельса, д.71
- Наш адрес -
- СПб, пр. Энгельса, д.71 -
- Карта проезда
- Пн-Пт 10:30-20:00 чвыходные 11:00-18:00 ч
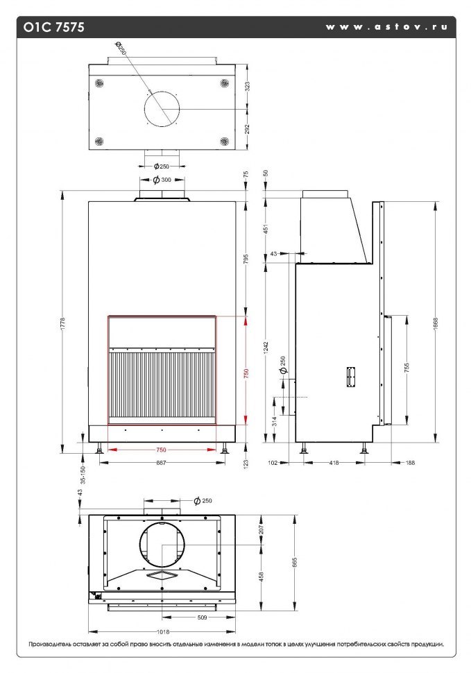
Открытая каминная топка с сеткой 01С 75\75
Варианты цвета: черный и темный графит
Открытые топки Астов с сеткой имеют ряд преимуществ:
1. Вид на огонь.
Одним из основных преимуществ открытых топок является возможность наслаждаться красивым видом на пламя и огонь, что создает уютную атмосферу.
2. Защита от искр.
Защитная сетка предотвращает выпадение искр и угольков на пол или другие поверхности. Это обеспечивает безопасность и защиту от возможных пожаров или повреждений.
Защитная сетка, выполненная в виде сот — разработка Астов, имеет высокий угол обзора на пламя. Такое решение удобно тем, что даже в закрытом состоянии не теряются ощущения от открытого огня.
3. Эргономичность.
Топки с сеткой имеют плавный, практически бесшумный подъемный механизм, который позволяет полностью скрыть защитную сетку.
Сетка расположена на направляющих, снабжена противовесами, что обеспечивает плавный ход и максимальное удобство использования.
Открытые топки Астов с сеткой имеют механический встроенный шибер в дымосборнике, который позволяет полностью перекрыть возможное поступление воздуха извне при неиспользовании камина.
4. Легкость обслуживания.
Открытые топки Астов легко обслуживать и очищать, поскольку доступ к огню более открытый, что упрощает добавление дров, очистку золы и обслуживание камина в целом.
| Топливо | Дрова |
| Форма стекла | Прямое, Без стекла (открытый) |
| Материал топки | Сталь |
| Водяной контур | Нет |
| Футеровка | Сталь |
| Подъемная дверца | Есть |
| Ширина фасада топки (мм) | 750 |
| Высота фасада топки (мм) | 750 |
| Шибер | Нет |
| Колосник | Нет |
| Зольник | Нет |
| Диаметр (мм) | 300 |
| Высота (мм) | 1778 |
| Ширина (мм) | 1018 |
| Глубина (мм) | 708 |
| Вес | 452 кг |
| Бренд | Астов (РФ) |
Загрузка данных авторизации