- Пн-Пт 10:30-20:00 чвыходные 11:00-18:00 ч
- +7 (911) 925-21-12
- СПб, пр. Энгельса, д.71
- Наш адрес -
- СПб, пр. Энгельса, д.71 -
- Карта проезда
- Пн-Пт 10:30-20:00 чвыходные 11:00-18:00 ч
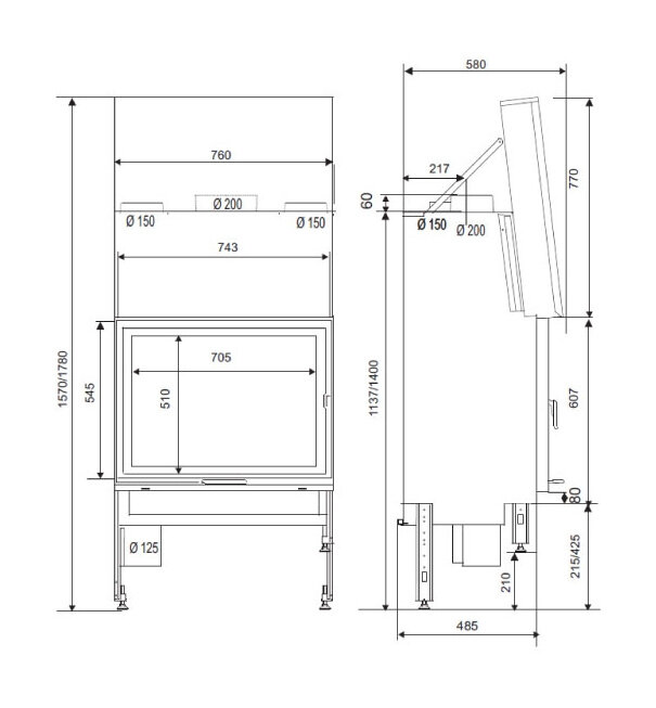
Универсальная каминная топка Supra Univers 201 B PN, шириной 760 мм, изготовлена из высококачественной стали, футерована изнутри чугунными вставками. Герметичная топка, тройная оболочка 2+1 - оптимальная надежность. Максимальную безопасность топки обеспечивает кожух с изоляцией из минеральной ваты. У кожуха очень приятный и стильный дизайн.
Увеличена до 15% застекленная поверхность дверцы (высота 51 см, ширина 70,5 см), при этом сохранены те же размеры топки и прежние возможности ее облицовки. Стекло жаропрочное и служит годы при отсутствии механического воздействия. Самоочистка стекла происходит за счет горячего воздуха, направляющегося на стекло и частицы пепла золы просто отсекаются. Система чистое стекло дополнена системой прозрачное стекло.
Особенности топки Univers 201 B PN
Дверца открывается вверх
Чугун "Волны"
Отделка "Премиум"
Плоская черная дверца
| Топливо | Дрова |
| Класс ЭЭ | A |
| Форма стекла | Прямое |
| Материал топки | Чугун |
| Водяной контур | Нет |
| Футеровка | Чугун |
| Подъемная дверца | Есть |
| Ширина фасада топки (мм) | 705 |
| Высота фасада топки (мм) | 510 |
| Шибер | Нет |
| Колосник | Есть |
| Зольник | Есть |
| Мощность (кВт) | 11 |
| КПД (%) | 71.1 |
| Диаметр (мм) | 200 |
| Высота (мм) | 1140 |
| Ширина (мм) | 760 |
| Глубина (мм) | 530 |
| Вес | 190 кг |
| Бренд | Supra (Франция) |
Загрузка данных авторизации