Корзина
0 руб.
пуста
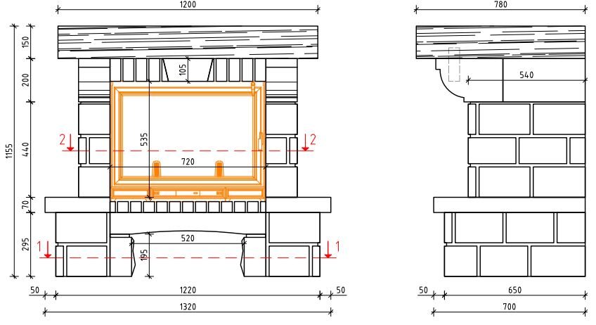
R-033 Ракушекчник Pierre Du Chateau, кирпичи (Франция), деревянная полка.
Модель может быть фронтальной и угловой.
Параметры:
Высота 115,5 см
Ширина 132 см
Глубина 78 см
| Расположение | Пристенный |
| Материал балки | дерево |
| Высота (мм) | 1155 |
| Ширина (мм) | 1320 |
| Глубина (мм) | 780 |
| Бренд | Sunhill (РФ) |
Загрузка данных авторизации