Корзина
0 руб.
пуста
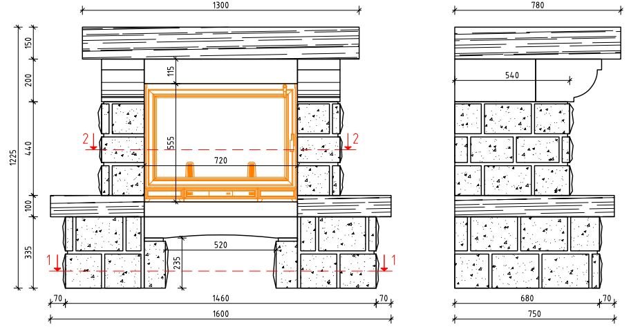
R-028 На фото камин представлен из ракушекчника Du Gard (Франция), деревянные полки.
Параметры:
Высота 122,5 см
Ширина 160 см
Глубина 78 см
| Расположение | Пристенный |
| Материал балки | дерево |
| Высота (мм) | 1225 |
| Ширина (мм) | 1600 |
| Глубина (мм) | 780 |
| Бренд | Sunhill (РФ) |
Загрузка данных авторизации