Корзина
0 руб.
пуста
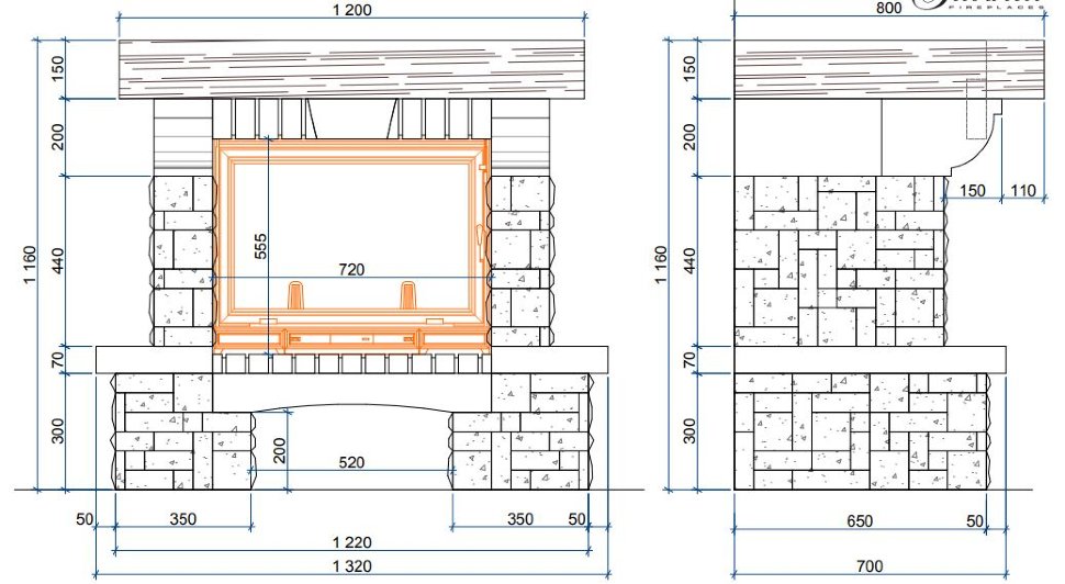
R-008 Ракушечник Du Gard (Франция), доломит, кирпичи (Франция). Полка из дуба.
Камин может быть как пристенный, так и уголовой.
Параметры:
Высота 117 см
Ширина 151 см
Глубина 75 см
| Расположение | Пристенный |
| Материал балки | дерево |
| Высота (мм) | 1170 |
| Ширина (мм) | 1510 |
| Глубина (мм) | 750 |
| Бренд | Sunhill (РФ) |
Загрузка данных авторизации